联系电话:
400-966-9098
产品概述
大口径全通径球阀适用于Class 150~300Lb,工作温度-29~200℃ 的石油、化工、火力电站等各种工况的管路上,切断或接通介质。适用介质为:石油、净化天然气、酸性天然气、煤气、水及煤浆等等介质。操作方式有:蜗轮传动、气动、电动、气液联动。
适用范围
城市燃气:燃气输出管道、主干线及各支线供应管道等。集中供热:大型供热设备输出管线、主干线、支线。热交换机:管道及各回路启闭。钢铁厂:各种流体管道、废气排放道、煤气和热力供应管道、燃料供应管道等。各种工业设备:各种热处理管道、各种工业煤气和热力管道。
产品特性
大口径全通径球阀采用固定球结构,球体的上、下轴上装有轴承,操作扭矩小,这种结构的球体是固定的,受压后不产生移动,设计有两个密封圈提供足够的预紧力保证密封,达到双面强制密封,密封性能更可靠。球体的加工过程有先进的计算机检测仪跟踪检测,以球体的加工精度高。由于阀体材料跟管道材质一样,不会出现应力不均,也不会出现由于地震及车辆经过地面时而产生变形,其密封环本体采用含量20%C(碳素)的PTFE材料,保障完全无泄漏(0%)。
执行标准
设计规范:API 6D、ASME B16.34
压力-温度等级:ASME B16.34、API608
结构长度:ASME B16.10、GB12221
对焊端形式:ASME B16.25、ASME B31.4/31.8
检验与试验:API 598、API 6D、GB13927
耐火试验:API 607、API 6FA

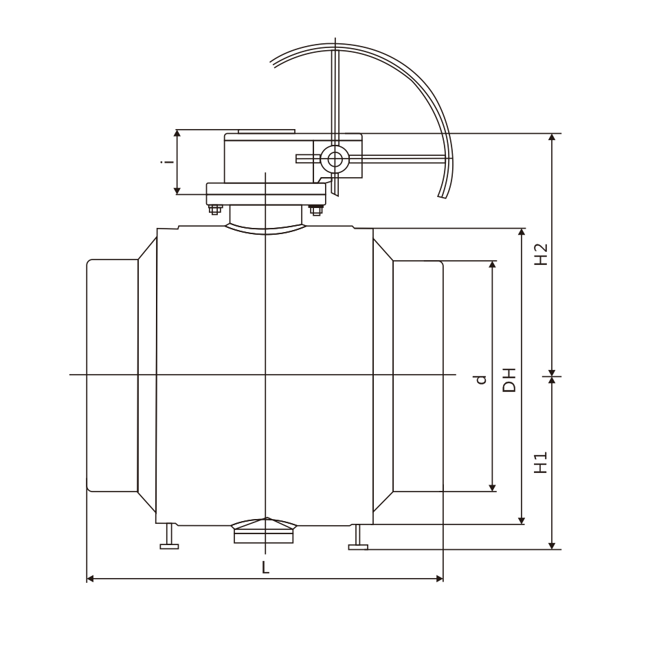
主要外形连接尺寸
| DN(mm) | 公称直径 | DH | d | t | L | H1 | H2 | 重量(Kg) |
| 600 | 600 | 1016 | 630 | 10 | 1143 | 650 | 860 | 2000 |
| 700 | 700 | 1130 | 720 | 10 | 1346 | 705 | 915 | 3100 |
| 800 | 800 | 1245 | 820 | 10 | 1524 | 770 | 1000 | 4700 |
| 900 | 900 | 1415 | 920 | 12 | 1727 | 855 | 1110 | 5700 |
| 1000 | 980 | 1555 | 1020 | 14 | 1840 | 925 | 1180 | 6600 |
| 1200 | 1166 | 1860 | 1220 | 16 | 2100 | 1075 | 1430 | 11000 |

:13372267205


